- Bauweise: Stb-Tragwerk mit Holzwänden
- BGF: 3.130 m²
- Auftraggeberin: ZIK gGmbH
- vollständiger Steckbrief

Städtebauliche Integration
Die Herausforderung lag in der städtebaulichen Integration des Wohngebäudes in den Bestand. Der 5-geschossige Neubau wurde zwischen zwei Bauten der Jahrhundertwende platziert. Er schließt an das 4-geschossige zurückgesetzte Bestandsgebäude aus den 1960er Jahren an.
Gemeinschaftlich und barrierefrei
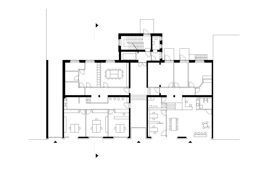
Im offen und transparent gestalteten Erdgeschoss befinden sich die öffentlichen Nutzungen. Die Ein-Zimmer-Apartments sind mit eigenem Bad und kleiner Kochnische ausgestattet. Ziel ist es, den Bewohnerinnen und Bewohnern ein selbstbestimmtes und verantwortungsbewusstes Leben in den eigenen vier Wänden zu ermöglichen. Das gesamte Gebäude ist barrierefrei gestaltet. Eine großzügige Dachterrasse auf dem Dach des Altbaus wird gemeinschaftlich genutzt. Bei Bedarf können Neu- und Altbau um ein weiteres Geschoss aufgestockt werden.
Energieeffizienz
Die Gebäudehülle besteht aus hochwärmedämmenden Holzelementwänden mit einer vorgehängten Metallverkleidung. Rohbau, Holzbau und die Haustechnik des Gebäudes wurden von Lehrlingen der Knobelsdorff-Schule errichtet. Ein eigenes Blockheizkraftwerk beheizt das Gebäude.







Steckbrief
- Projekt: Erweiterungs- und Umbau betreutes Wohnen mit 34 Apartments
- Ort: Berlin, Kreuzberg
- Auftraggeberin: ZIK gGmbH
- BGF: 3130 m²
- Planung: Rozynski Sturm Architekten mit Harald Haertwig
- Leistungsphasen: 1-9
- Bauweise: Stb-Tragwerk mit Holzwänden
Team
- Mitarbeit: Anna Rödde
- Fotograf: Stefan Josef Müller
![A A Straße [Rei A Ansicht Straße]](https://testsystem.meisel-webdesign.de/rs/wp-content/uploads/2026/02/10_RS_REI-6-1024x765.jpg)
![A A Straße [Rei A Ansicht Straße]](https://testsystem.meisel-webdesign.de/rs/wp-content/uploads/2026/02/11_RS_REI-4-1024x765.jpg)

