- Bauweise: 4-geschossiger Holzbau
- BGF: 830 m²
- Auftraggeberin: Privat
- vollständiger Steckbrief

Versteckt im Hinterhof
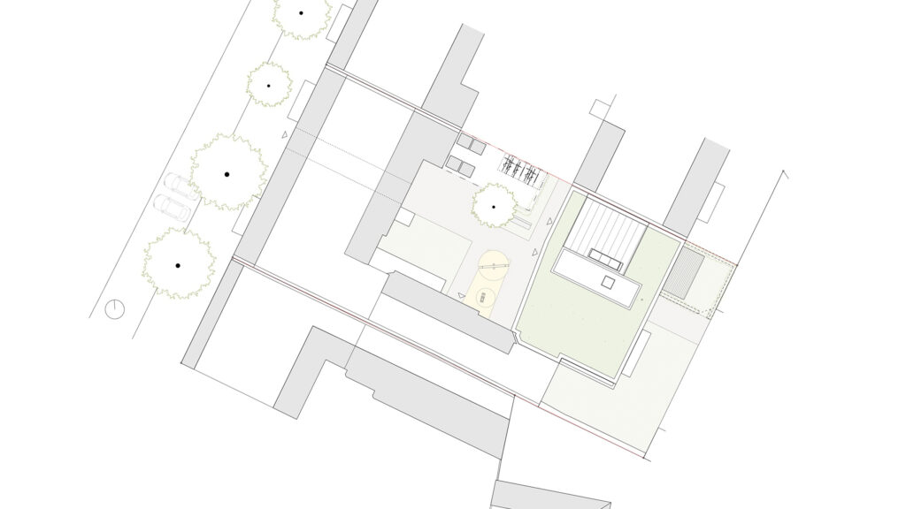
Das Baugrundstück liegt in Berlin-Prenzlauer Berg, einem populären Stadtteil in einem dichten städtischen Umfeld. Auf dem Grundstück existieren ein Vorderhaus und ein Seitenflügel, die sich gemeinsam mit der Nachbarbebauung um einen Innenhof gruppieren. In der Tradition der historischen Bebauung ergänzt der viergeschossige Neubau das Ensemble unter Berücksichtigung der aktuellen Wohn- und Lebensbedürfnisse. Das neue Gartenhaus ist über den Innenhof zugänglich. Den zentralen Zugang bildet ein Treppenraum mit einläufiger Treppe und Aufzug, über den man auch in den hinter dem Neubau liegenden gemeinsamen Garten gelangt.
Licht, Luft und Grün für Alle
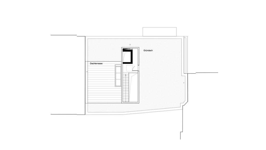
Alle Wohnungen verfügen über einen großzügigen Wohnbereich und private Außenräume wie Balkone und Terrassen. Einige Wohnungen sind als Maisonette-Wohnungen mit einer Wohn- und einer Schlafetage konzipiert. Im Dachgeschoss existiert ein Ausgang auf das begrünte Dach, das von den Bewohnern gemeinsam genutzt wird.
Konstruktion
Die Konstruktion aus Stahlbeton-Fertigteilen mit Außenwänden in nichttragender Holzrahmenbauweise berücksichtigt die schwer zugängliche Lage im Hinterhof. Hohe Vorfertigungsmöglichkeiten ermöglichen eine kurze Bauzeit.





Steckbrief
- Projekt: Neubau eines Mehrfamilienhauses mit 5 Wohneinheiten
- Ort: Berlin, Prenzlauer Berg
- Auftraggeber: Privat
- BGF: 830 m²
- Planung: CKRS Architekten
- Leistungsphasen: 1-8
- Bauweise: 4-geschossiger Holzbau
Team
- Fotograf: Sebastian Johnke







