Im Rahmen der kooperativen Quartiersentwicklung um das Haus der Statistik wird der Gebäudekomplex auf dem 3,2 Hektar großen Gelände gegenüber vom Berliner Alexanderplatz nach mehr als 10 Jahren Leerstand revitalisiert und durch Neubauten ergänzt.
Geplant sind neben dem „Rathaus der Zukunft“ für den Bezirk Mitte und einem neuen Finanzamt ein gemischt-inklusives Raumprogramm für Bildung, Kultur und Soziales sowie der Neubau von bezahlbaren Wohnungen und Gewerbeeinheiten durch die WBM Wohnungsbaugesellschaft Berlin-Mitte.
- Holzhybridbau
- Auftraggeberin: WBM Wohnungsbaugesellschaft Berlin-Mitte mbH
- BGF: 9.750 qm (inkl. 1.250 qm Gewerbefläche)
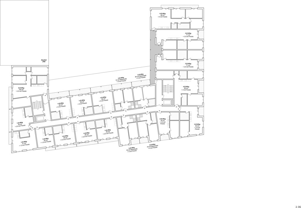
CKRS Architekten haben an dem städtebaulichen Werkstattverfahren für den Neubau von 99 Wohnungen mit erdgeschossiger Gewerbenutzung auf Baufeld B teilgenommen. Leitidee des Entwurfs ist, mit einfachen Mitteln ein wirtschaftliches Haus zu bauen. Das Gebäude ermöglicht eine variable Nutzung mit viel Raum für Initiativen und transportiert gleichzeitig einen dauerhaften, unverwechselbaren und architektonischen Ausdruck. Mit der Robustheit und industriellen Materialität der gewellten Metallfassade wird eine Verbindung zur Geschichte des Ortes und der vorgefertigten, seriellen Nachbarbebauung in Berlin Mitte hergestellt. Der Kontext wird durch den Entwurf neu interpretiert und in eine zeitgemäße Bauweise übersetzt.
Das hybrid genutzte Wohnhaus besteht aus einem gewerblich genutzten Erdgeschoss und sechs darüber liegenden Wohngeschossen. Im Erdgeschoss entstehen Flächen für einen Supermarkt, eine zum begrünten Innenhof orientierte Kindertagesstätte sowie Raumangebote für ein Café und Ateliers.
Ein effizientes und kostenschonendes Erschließungssystem strukturiert das Gebäude. Mit nur zwei Treppenhauskernen werden alle Wohnungen erschlossen. Die Kerne werden auf den Geschossen jeweils abwechselnd durch einen Flur und eine Laubengangerschließung verbunden. Dadurch werden größtmögliche Flexibilität und ein vielfältiger Wohnungsmix mit einem differenzierten Angebot an Wohnungen ermöglicht.
Das Gebäude ist in zeit- und kostenoptimierter Hybridbauweise mit seriellen Bauteilen geplant.
Studie mit dialogischem Werkstattverfahren
Neubau von 99 Wohnungen mit erdgeschossiger Gewerbenutzung
Berlin-Mitte
Holzhybridbau
Auftraggeberin: WBM Wohnungsbaugesellschaft Berlin-Mitte mbH
BGF: 9.750 qm (inkl. 1.250 qm Gewerbefläche)
CKRS Architekten
Mitarbeit: Flavia Biianu, Aga Mac, Gina Radon, Yannick Wissel












