- Bauweise: Holzhybrid
- BGF: 500 m²
- Auftraggeberin: Schulstiftung der Evangelischen Kirche Berlin-Brandenburg-schlesische Oberlausitz
- vollständiger Steckbrief

Integration in den Bestand
Die gestalterische Herausforderung des Schulbaus lag in der Schaffung eines modernen, harmonischen Baukörpers sowie in der sensiblen Eingliederung des Neubaus auf dem Gelände. Das freistehende Schulgebäude erweitert heute den denkmalgeschützten Bestandsbau und integriert sich in die offene Bauweise des allgemeinen Wohngebietes.
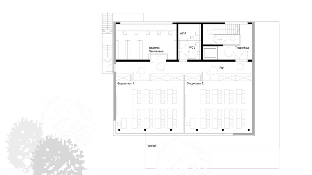
Organisation & innere Erschließung
Das Erdgeschoss ist in Mensa und dazugehörende dienende Funktionsbereiche unterteilt. Dabei öffnet sich der Speisesaal großzügig nach Süden zum Schulgarten. Das Obergeschoss ergänzt die neuen Funktionen um Gruppenräume im Süden sowie einen Bibliotheks- und Erzieherraum.
Konstruktion und Ökologie
Das Gebäude ist in Mischbauweise konzipiert. Tragende Teile wie Decken, Wände und Stützen sind aus Stahlbeton hergestellt, die mit hochwärmedämmenden Holzelementen ummantelt wurden. So entsteht eine wärmende, nachhaltige und ästhetisch ansprechende Hülle über der Tragkonstruktion, die von offenen, großzügige Glas-Elementen durchbrochen wird.





Steckbrief
Projekt: Neubau einer Mensa mit Gruppenräumen
Ort: Berlin-Wilmersdorf, Warmbrunnerstraße
Auftraggeberin: Schulstiftung der Evangelischen Kirche Berlin-Brandenburg
BGF: 500 m²
Planung: Rozynski Sturm Architekten
Leistungsphasen: 1-9
Fotos: Werner Huthmacher


