- Bauweise: StB-Tragwerk mit Beton/ Aluminium /Glasfassade
- BGF: 26.500 m²
- Auftraggeberin: Quartier Heidestraße GmbH
- vollständiger Steckbrief

Hybrider Blockbau
CKRS Architekten konnten den europaweiten Wettbewerb zur Planung des Mischgebietes „QH Spring“ für sich entscheiden. Der Entwurf besteht aus einem hybriden Block mit stadträumlicher Ausstrahlung, in dem ein Nutzungsmix aus Hotel, Gewerbe, frei finanziertem und gefördertem Wohnen sowie einer Kindertagesstätte untergebracht ist.
Konstruktion und Gestaltung
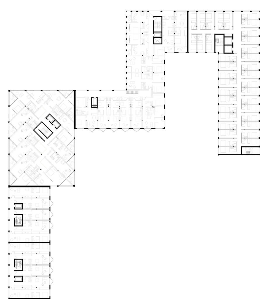
Der Gebäudekomplex gliedert sich in einen schmalen, siebengeschossigen Riegel in Richtung der westlich verlaufenden Bahngleise, einen zwölfstöckigen Wohnturm mit vorgelagertem Quartiersplatz, eine Klammer mit sieben Vollgeschossen und ein fünfgeschossiges Hotel zur Heidestraße. Eine gemeinsame Konstruktions- und Fassadensprache verbindet die einzelnen Baukörper zu einer zusammenhängenden Einheit. Die kantige, raue und hochwertige Fassade aus pigmentierten Betonfertigteilen schafft ein angemessenes und selbstbewusstes Gegenüber zum nördlich geplanten Backsteingebäude. Auf Grundlage einer an den Industriebau angelehnten Tragstruktur aus Stützen und tragenden Kernen ist die Grundrissgestaltung flexibel und ermöglicht unterschiedliche Wohnungstypen. Mit wenig Aufwand können Wohnungen zusammengelegt oder anders aufgeteilt werden.
Übereinandergestapelt
Im Erdgeschoss des Hotels befinden sich Rezeption, Meetingräume, Lounge und Bar sowie das Frühstücksrestaurant und die dazugehörigen Küchenbereiche, während die 180 Hotelzimmer in den Obergeschossen organisiert sind. Auf dem Dach stehen den Gästen großzügige Terrassen zur Verfügung.
Der Großteil der insgesamt ca. 260 Wohnungen ist mietpreisgebunden und verteilt sich auf drei Baukörper. In den drei obersten Geschossen des Turms befinden sich frei finanzierte Wohnungen mit weitem Blick über die Europacity und Berlin. Die erhöhten Anforderungen an den Schallschutz durch die unmittelbare Nähe einer Bahntrasse wurden sowohl in der Grundriss- als auch in der Fassadengestaltung berücksichtigt. Bewohnerinnen und Bewohner, Hotelgäste und KiTa-Kinder nutzen den grünen Hof anteilig.










Steckbrief
- Projekt: Neubau Gebäudekomplexes mit Wohnen, Kita, Gewerbe und Hotel
- Ort: Berlin Europacity, Heidestraße
- Verfahren: Realisierungswettbewerb
- Auftraggeberin: Quartier Heidestraße GmbH
- BGF: 26.500 m²
- Planung: CKRS Architekten
- Leistungsphasen: 1-5
- Bauweise: StB-Tragwerk mit Beton/ Aluminium/ Glasfassade
- Fotos: Rainer Taepper, CKRS Architekten
![4 [REGELGESCHOSS]](https://testsystem.meisel-webdesign.de/rs/wp-content/uploads/2026/02/16_CKRS-17-03-QH-Regelgeschoss_1-890x1024.jpg)


